Skip to content Skip to footer

Pauluskirche Brunsbüttel

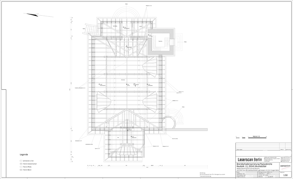
Projekt: Pauluskirche, Dachstuhlaufmaß nach Brand, 2025
Ort: Brunsbüttel
Technologie: Laserscanner ZF Imager 5016, Drohne DJI Mini 4 Pro
Genauigkeit: Genauigkeit und Auflösung von 5mm
Auftrag: Verformungsgerechtes Aufmaß des Brandschadens als Dokumentation
Scan2BIM - Rekonstruktion des Dachstuhls als BIM-fähiges 3D-Modell
Scan2CAD - Ableitung von Grundrissen und Vertikalschnitten